"Nachmieter oder Untermieter einzelner Büro-Räume gesucht!"

Inserat merken Auf Inserat antworten

CHF 420.-

"Büroräumlichkeiten an zentraler Lage Nähe SihlCity"

Per April 2021 oder nach Vereinbarung suchen wir in einem Wohn- und Geschäftshaus an zentraler Lage für ausgebaute Büro- oder Gewerberäumlichkeiten im EG (ca. 71 m2) einen Untermieter für einen oder zwei Räume.

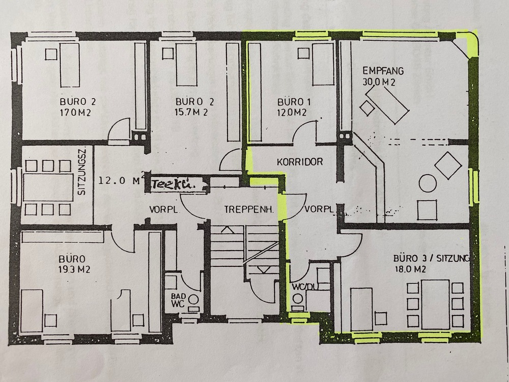
Die Liegenschaft befindet sich zwischen SihlCity und Brunaupark. S-Bahn- und Tramstation, Einkaufsmöglichkeiten und Parkhaus in unmittelbarer Nähe. Die Räumlichkeiten sind unterteilt in 3 Büroräume, Eingangsbereich, Lagerraum und verfügen über Beleuchtung, Vorhänge, Kabelkanäle, WC/Dusche, Küche mit Kaffeemaschine und Kühlschrank und 2 separaten Eingängen. 2 Parkplätzen vor dem Büro können dazu gemietet werden.

Die Mietpreise der einzelnen Räume zur Untermiete:

  • Empfang/Zimmer mit Schaufenster, eigenem Eingang und Klimaanlage: 30 m2 = Sfr. 950.- inkl. Internet, Küche und Bad zur Mitbenützung

  • Büro/Zimmer 1: 12 m2 = Sfr. 420.- inkl. Internet, Küche und Bad zur Mitbenützung.

  • Büro/Zimmer 3: 18 m2 = Sfr. 620.- inkl. Internet, Küche und Bad zur Mitbenützung.

Für weitere Auskünfte oder eine Besichtigung stehen wir gerne zur Verfügung.

Aufgegeben: 02.03.21
Auf Inserat antworten